系统检测到您所使用的浏览器版本较低,请升级Internet Explore 。推荐使用FirefoxChrome浏览器打开,否则将无法体验完整产品功能。
×
发布时间:2010-05-25    
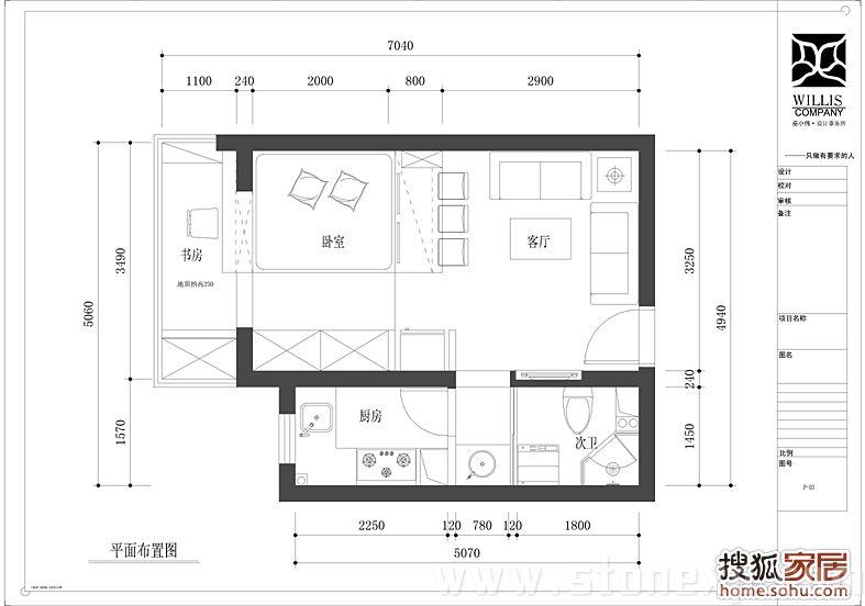
小而精是在这套小空间得以体现,在使用面积不到30平米空间里,精巧的把他划分成客厅、餐厅、卧室、书房、厨房、卫生间功能,在生活功能上得以满足。做为年轻的业主,更追求时尚,在整体色调选择黑白米色调为主,让主人每回到家有放松心情,温馨浪漫的感觉。








酒店设计与石材应用