系统检测到您所使用的浏览器版本较低,请升级Internet Explore 。推荐使用FirefoxChrome浏览器打开,否则将无法体验完整产品功能。
×
中文名: 克拉科夫当代艺术博物馆 Claudio Nardi设计师作品 环境空间: 广场
工程类别: 文化会展
简单描述:


建筑设计:Claudio Nardi Architetto

首席设计师:Claudio Nardi

设计团队:Claudio Nardi con Leonardo Maria Proli

业主:Ghina Miejska Krakow, Zarzad Buoynkow Komunalnych, Municipality of Krakow

施工:WARBUD SA

项目地点:克拉科夫,波兰

建成时间:2010年

建筑面积:9000平方米

造价:20,000欧元

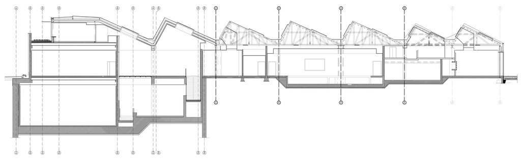
    Claudio Nardi Architetto设计的位于波兰克拉科夫的克拉科夫当代艺术博物馆,是从工厂改造而成,设计风格介于历史和未来之间,它打开了克拉科夫文化生活的新篇章。

    原建筑工业风格的屋顶线条成为整个项目的视觉元素设计,是新旧建筑的连续点。展览区建造在原有的建筑结构之中,展区从入口一直延伸到后部的花园广场。南墙是印有博物馆标识的地方,是入口所在地。在街上看,新博物馆就像是一座新类型的建筑,展现了现代技术、轻质量和光亮等特征。

黑金花-石材中的顶级珍品