柏林犹太人博物馆
柏林犹太人博物馆馆设计的时代背景:
二战之后,德国从未停止对历史的反省,德国对历史的态度,使德国人、法国人甚至整个欧洲的人民都感到轻松和安全。为了表示"勿忘历史"的决心,德国还为犹太人修建了一座大屠杀纪念馆。2005年12月15日,柏林犹太人纪念馆最终落成。
丹尼尔·列别斯基(D.Libeskind)设计的“柏林博物馆(犹太人博物馆)”建筑,称得上是浓缩着生命痛苦和烦恼的稀世作品:反复连续的锐角曲折、幅宽被强制压缩的长方体建筑,像具有生命一样满腹痛苦表情、蕴藏着不满和反抗的危机。
该纪念馆最具特色的主体部分是一个占地2万平方米的露天广场,地面由2711块高矮不等、刻有请愿书的水泥板铺成,远看就像是一片被微风拂过的麦田,而走近了则像是步入一个巨大的迷宫。负责设计纪念馆的美国建筑师彼得·埃森曼表示,他的设计将强迫人们面对过去。
广场上还将竖起一个扬声器,昼夜不停地播放400万记录在册的大屠杀遇难者的姓名。而在广场地下还有一个特别的资料中心,为前往参观的人提供服务。
反复连续的锐角曲折、幅宽被强制压缩的长方体建筑,像具有生命一样满腹痛苦表情、蕴藏着不满和反抗的危机,令人深感不快。丹尼尔。里伯斯金设计的“柏林博物馆(犹太人博物馆)”的整个建筑,可以称得上是浓缩着生命痛苦和烦恼的稀世作品。
丹尼尔·列别斯基(D.Libeskind)称该博物馆为“线状的狭窄空间”。理由是在这座建筑中潜伏着与思想、组织关系有关的二条脉络。其一是充满无数的破碎断片的直线脉络。其二是无限连续的曲折脉络。这二条脉络虽然都有所限定,却又通过相互间的沟通,而在建筑和形式上无限地伸展下去。
依据相互离散、游离的处理手法,形成了贯穿这座博物馆整体的不连续的空间。这二条脉络是“犹太人博物馆”的特征,同时又是里伯斯金所特有的“二元对立,二律背反”的观点。
柏林的痕迹,不仅仅是物理的,据说其中还有说不清因果关系的根源,或者是既往性夹杂在里面。从德国人和犹太人的外在关系来观察,他下了这样的结论。他执着地追求曾对犹太人的传统和日尔曼文化做出贡献的作家、音乐家和艺术家们的生活踪迹,并将其模式化。
柏林犹太人博物馆的四个主要表现:
其一是内容。该博物馆共有4个隐喻情结。
其二是根据作曲家阿诺德。施昂拜格未完成的歌剧“摩西和阿龙”的脚本而构成的。在此处,表现了由于歌的存在,而歌词不清,相反,歌不存在,而能帮助对歌词的理解的不合情理性。
其三,在大屠杀年代被驱逐出柏林,在里加和乌其的强制收容所中死亡人的名字和死亡地名。第四,是以瓦特。本杰明的“一侧通行路”形成的。沿着曲折型建筑,引入了60个连续的断面。如此一览“犹太人博物馆”的话,正如街谈巷议所说,里伯斯金充满晦涩的形而上学的超俗的思考,对我们一般人来说是难以接近的。
其四,存在与不存在的概念,他从自身的体验,给予了非常明确的解释。
双重自相矛盾的逻辑,是符合“犹太人博物馆”所体现的观点。一种艺术,由于作为其核心的主体的丧失,例如像没有情节的文学,没有旋律的音乐那样的没有展示品的博物馆,其不存在性、非在的存在性的缘由,好像已是新型文化形式的一种倾向。
充满被驱逐、遭受屠杀的(成为不存在)犹太人的悲痛与苦恼的“犹太人博物馆”,仅仅超越了设计的特异性和观念的前卫性,将作为一个民族的悲惨命运的历史封印。同是一个犹太系的音乐家古斯塔瓦·马勒,所内含的如在第九交响曲所奏出的旋律那样深沉暗淡的精神才是杰出的。
柏林犹太人博物馆设计者:

建筑师:丹尼尔·列别斯基(D.Libeskind)
丹尼尔·列别斯基(D.Libeskind)简介:故乡波兰,从6岁起学弹钢琴,后来移居以色列,成为精通钢琴的音乐名人。曾经赢得美国-以色列文化基金会举办的著名的音乐竞赛(同赛的有伊萨克。帕尔曼、P。祖克尔曼、巴伦伯伊姆)。后来其音乐天才移向了建筑设计。
柏林犹太人博物馆英国媒体报道资料:
英国媒体12月16日报道,这个纪念馆是为祭奠当年在纳粹大屠杀中不幸遇难的600万无辜犹太人而兴建的,馆址位于柏林市中心象征德国统一的勃兰登堡门和联邦议院大厦之间,而二战结束时希特勒自杀的总理府地下室就在旁边。
关于修建纪念大屠杀死难者纪念馆的提议早在1988年就已提出,并在地点、设计、费用等方面引发了激烈争论。前柏林市长艾伯哈·迪根在批评这项提议时说:"这岂不是要把柏林变成悼念之都?"而其他人则认为,在如此抢手的黄金地段修建一座大型"集体墓地",简直是不可思议的奢侈之举。据了解,纪念馆所在地的地价的确贵得惊人,粗粗估算一下约值2亿英镑;另外,纪念馆本身的造价也高达1800万英镑。
支持这项计划的人强调:柏林应该成为全世界哀悼二战遇难者、尤其是犹太人的地理和精神中心;几百年后,这座纪念馆仍会向后人警示那段令人发指的历史。另外,修建这座富有历史意义的建筑也将向世人展示当代德国推行民主改革的信心和成就。经多年反复斟酌,德国政府决定在2003年8月16日动工兴建这座犹太人大屠杀纪念馆。
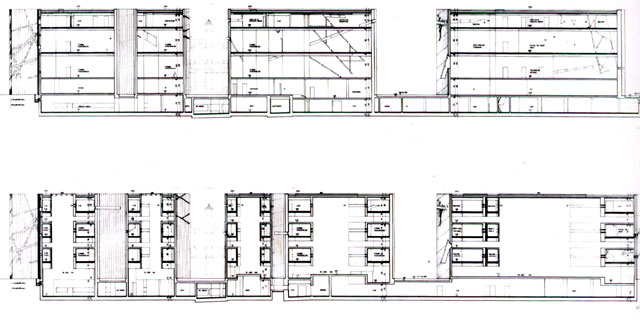
柏林犹太人博物馆图片资料(部分):
[page]
[page]
[page]
[page]
犹太博物馆----解构的作品,用一种稍显扭曲、破坏、混乱的手法
反映了人类社会发展中的一段泥泞、一种毁坏后的重建、一种黑暗中的光明。
---------------------------------------------------------------------------------
各国大屠杀纪念馆(部分资料)
美国华盛顿大屠杀纪念馆第二次世界大战战前和战争期间,有许多受纳粹迫害的犹太人逃往美国。1980年,美国国会批准在首都华盛顿国家大草坪附近建造一座大屠杀纪念馆。
以色列犹太人大屠杀纪念馆该纪念馆座落于耶路撒冷城西的赫哲山旁,呈一字排开深入地下,里面展示着从1940年起,德国纳粹党有计划屠杀犹太民族的各种图片和文献。
波兰奥斯维辛集中营博物馆波兰奥斯维辛集中营从1940年开始修建。到1945年二战结束为止,到底有多少人死在那里一直是个未知数。据后来的资料推测,有110万犹太人在此被屠杀,其中有波兰犹太人30万,匈牙利犹太人至少40万。
• 凡注明“石材体验网”的所有文字、图片、音视频、美术设计和程序等作品,版权均属石材体验网所有。未经本网授权,不得进行一切形式的下载、转载或建立镜像。
• 您若对该稿件内容有任何疑问或质疑,请即与体验网联系,本网将迅速给您回应并做处理。
点击右侧【在线咨询】或至电0769-85540808 处理时间:9:00—17:00
石材体验网部份作品均是用户自行上传分享并拥有版权或使用权,仅供网友学习交流,未经上传用户书面授权,请勿作他用。