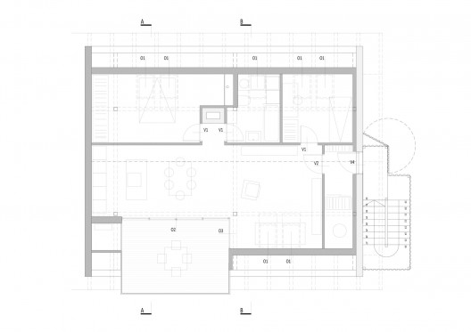
这个阁楼是很久之前的一个农仓,现在废弃,但被建筑师改为一个私人的家庭住宅。建筑师保存了古老的建筑元素,还有烟囱,同时将其与新元素相结合。南侧朝向和高高的天花板创造出轻盈开阔的空间。冬日的阳光能够到达住宅的最深处,夏季起居室则藏在阴凉的暗处,形成自然的供热和降温,不需任何人工作用。起居室向着阳台突出,使人们能有城市的景色。北侧是卧室和服务区,烟囱分隔白天和夜间活动区。附加的楼梯形成入口。新的环氧树脂地板和简单的白色家具与百年前的松木结构形成鲜明对比。老烟囱的砖结构被保留下来,成为对过去的回忆。新楼梯由钢铁结构组成,台阶为落叶松,楼梯周围被丙烯酸塑料包裹。





• 凡注明“石材体验网”的所有文字、图片、音视频、美术设计和程序等作品,版权均属石材体验网所有。未经本网授权,不得进行一切形式的下载、转载或建立镜像。
• 您若对该稿件内容有任何疑问或质疑,请即与体验网联系,本网将迅速给您回应并做处理。
点击右侧【在线咨询】或至电0769-85540808 处理时间:9:00—17:00
石材体验网部份作品均是用户自行上传分享并拥有版权或使用权,仅供网友学习交流,未经上传用户书面授权,请勿作他用。