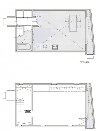
这个建筑的北侧部分是楼梯,浴室,入口平台和其他空间依次排布,它们充当一个缓冲区,隔开公共和私人空间。它们后面是起居空间,它比周围的房间低600毫米。设计打算设计一个半地下的空间,因此房间的天花板高一些。在一二楼之间有一些地面木板,顶层是一个巨大的卧室。





• 凡注明“石材体验网”的所有文字、图片、音视频、美术设计和程序等作品,版权均属石材体验网所有。未经本网授权,不得进行一切形式的下载、转载或建立镜像。
• 您若对该稿件内容有任何疑问或质疑,请即与体验网联系,本网将迅速给您回应并做处理。
点击右侧【在线咨询】或至电0769-85540808 处理时间:9:00—17:00
石材体验网部份作品均是用户自行上传分享并拥有版权或使用权,仅供网友学习交流,未经上传用户书面授权,请勿作他用。